Horizon Hill Townhomes

Ginninderry, ACT

Project Value

$45 million

Size

44 Townhomes

Status

Completed

Project Services

Origination, Acquisition, Development Management, Town Planning

Share

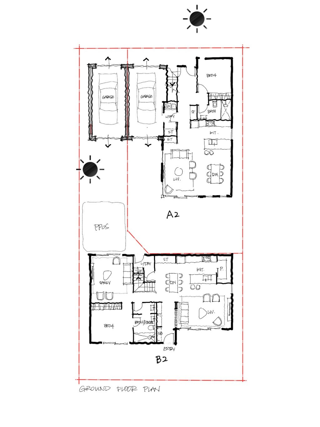
Allera acted as Development Manager for Horizon Hill within Ginninderry, leading the project from early origination and feasibility through planning approvals and delivery. Now complete, the project comprises 44 townhomes, delivering a high-quality medium-density residential outcome with approximately $45 million in end value. Allera played a central role in shaping the project’s commercial and planning strategy, undertaking detailed feasibility modelling to test yield, dwelling mix and built-form scenarios.

This early work informed a series of design refinements focused on efficiency, liveability and buildability – maximising net saleable area while maintaining strong amenity. In medium-density projects such as Horizon Hill, Allera’s approach recognises that every square metre counts, and value is created through careful optimisation rather than scale alone.

Throughout the approvals process, Allera worked closely with Rawson Development, planners, engineers and council to navigate precinct controls, infrastructure requirements and technical constraints. Through proactive stakeholder engagement and solution-focused coordination, Allera helped de-risk the project, align expectations and maintain momentum from approval through construction.

With construction now complete, Horizon Hill is a clear demonstration of Allera’s strength in delivering well-resolved medium-density developments through disciplined analysis, strong relationships and end-to-end development management.

Related Projects

Residential
Read More

CABA Residences by Allera

CABA is a luxury apartment development by Allera in Cabarita Beach, NSW. Currently under construction, the project showcases 20 apartments designed for a coastal lifestyle, featuring high-end finishes, ocean views and wellness amenities such as a fitness centre, sauna, cold plunge, spa and outdoor pool.
Residential
Read More

Marine & Pearl by Allera

Allera's development Marine & Pearl in Kingscliff NSW, will showcase the best of the north coast lifestyle in a unique waterfront development designed by award-winning architects Clarke Hopkins Clarke.
Residential
Read More

Aqua Mosman

Developing a collection of four bespoke apartments, AQUA Mosman, designed to respond to the natural surrounds and capitalise on water vistas through to middle harbour.